De Sitterlaan 109

2313TM Leiden
Verkocht

Omschrijving

See English text below.

Zeer fraaie, ruime jaren ‘30 eengezinswoning in de Professorenwijk met veel authentieke details waaronder een erker, vestibule, glas-in-loodramen en paneeldeuren. De woning beschikt over 4 slaapkamers, badkamer, een moderne keuken en een ruime woonkamer met openslaande deuren naar een diepe fraai aangelegde achtertuin op het zonnige zuiden, met berging en achterom. Er is tevens een dakkapel aan de voorzijde waardoor er een extra ruime zolderkamer is gecreëerd.

Op enkele fietsminuten sta je de historische binnenstad van Leiden met leuke winkels, restaurants en musea en de mooie grachten. Gunstige ligging nabij buurtwinkels, scholen, uitvalswegen (A4/N11) en NS Station Lammenschans, buurtwinkels, park Cronesteyn en hockey- en tennisvelden.

Bekijk ook de bezichtigingsvideo!

Indeling:
Begane grond:
Authentieke entree. Vestibule met meterkast en tegelvloer, aansluitend een hal met trapopgang en royaal modern toilet met fonteintje. Ruime lichte woonkamer met erker, massief eikenhouten vloer en openslaande deuren naar een diepe achtertuin (zuid) met berging en achterom. Moderne halfopen keuken met tegelvloer (vloerverwarming), voorzien van diverse (inbouw)apparatuur waaronder een vaatwasser, 4-pitsgasfornuis, afzuigkap, oven en close-in-boiler (plintboiler). Vanuit de keuken is tevens de achtertuin te bereiken.
De tuin is fraai aangelegd en beschikt over meerdere zitgedeeltes en zones. Achterin bevindt zich een gezellige loungehoek, een overkapping met ruimte voor een evt. buitenkeuken, een fijne berging en een groot terras direct aan de achterzijde van de woning.

1e verdieping:
Overloop met toegang tot 3 slaapkamers en de trapopgang naar tweede verdieping. Ruime slaapkamer aan de achterzijde met toegang tot een heerlijk balkon. Badkamer met inloopdouche en wastafelmeubel. Alle slaapkamers beschikken nog over glas in-lood ramen en zijn voorzien van een laminaatvloer.

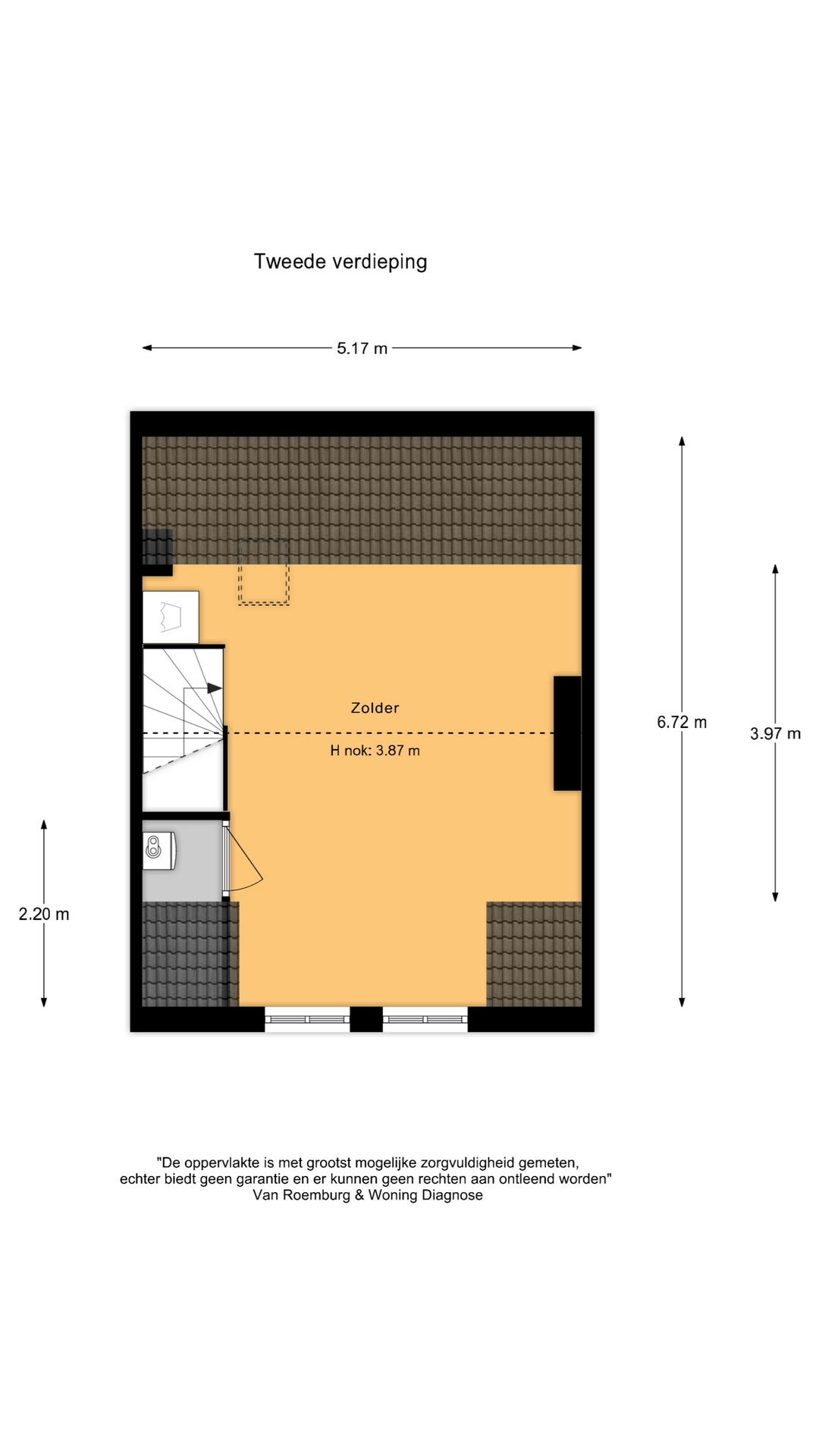
2e verdieping:
Via een vaste trap heeft u toegang tot de riante zolderkamer met opengewerkte nok. Door de aanwezigheid van een dakkapel is er extra ruimte gecreëerd. Er bevindt zich een aparte afgesloten CV ruimte en er is tevens de aansluiting voor de wasmachine/droger. De zolder is volledig geïsoleerd en voorzien van een houten vloer. Hier zouden meerdere kamers kunnen worden gecreëerd.
Bijzonderheden:
- Er is een recente bouwtechnische keuring beschikbaar
- Bouwjaar 1943
- Beschermd stadsgezicht
- Gebruiksoppervlakte 109m2
- Externe bergruimte 5m2 (berging)
- Gebouw gebonden buitenruimte 6m2 (balkon)
- Perceel 140m2
- Inhoud 384m3
- 7 zonnepanelen (2020)
- CV ketel Nefit, bouwjaar 2014
- Dakisolatie
- Moderne meterkast met 8 groepen
- Gehele woning voorzien van dubbelglas (het glas-in-lood grotendeels dubbelglas)
- Geïsoleerde spouwmuren
- Energielabel C
- Schilderwerk 2020 buiten
- Voor- en achtertuin aangelegd
- Elektrisch zonnescherm achter bg
- Parkeren voor vergunninghouders (vergunning ca. € 61,- per jaar, geen wachtlijst)
- Oplevering in overleg

Bij woningen ouder dan 30 jaar hanteren wij standaard een ouderdoms- en asbestclausule
_________________________________

Very attractive and spacious 1930s family home in the Professorenwijk, featuring many authentic details such as a bay window, vestibule, stained-glass windows, and panel doors. The house offers 4 bedrooms, a bathroom, a modern kitchen, and a spacious living room with French doors opening onto a beautifully landscaped, deep south-facing garden with a shed and rear access. A dormer window at the front creates an extra spacious attic room.

Just a few minutes by bike will take you to the historic city center of Leiden, with its charming shops, restaurants, museums, and beautiful canals. Conveniently located near local shops, schools, major roads (A4/N11), Lammenschans train station, neighborhood shops, Cronesteyn Park, and hockey and tennis fields.

Be sure to watch the viewing video!

Layout:

Ground floor:
Authentic entrance. Vestibule with meter cupboard and tiled floor, followed by a hallway with stairs and a spacious modern toilet with washbasin. Bright and roomy living room with bay window, solid oak flooring, and French doors leading to the deep south-facing garden with storage shed and rear access.
Modern semi-open kitchen with tiled floor (underfloor heating), equipped with various (built-in) appliances including a dishwasher, 4-burner gas stove, extractor hood, oven, and close-in boiler (plinth boiler). The kitchen also provides access to the garden.
The garden is beautifully landscaped with multiple seating areas and zones. At the rear, there is a cozy lounge area, a covered space suitable for an outdoor kitchen, a convenient storage shed, and a large terrace directly adjacent to the house.

First floor:
Landing with access to 3 bedrooms and stairs to the second floor. Spacious bedroom at the rear with access to a lovely balcony. Bathroom with walk-in shower and washbasin unit. All bedrooms still feature stained-glass windows and have laminate flooring.

Second floor:
Accessible via a fixed staircase leading to a large attic room with open ridge ceiling. The dormer window provides additional space. There is a separate boiler room and connections for a washing machine and dryer. The attic is fully insulated and has a wooden floor. Several additional rooms could be created here.

Particulars:

Recent structural inspection report available
Built in 1943
Designated city heritage area (beschermd stadsgezicht)
Usable living area: 109 m²
External storage: 5 m² (shed)
Building-related outdoor space: 6 m² (balcony)
Plot size: 140 m²
Volume: 384 m³
7 solar panels (installed in 2020)
Central heating boiler: Nefit, built in 2014
Roof insulation
Modern electrical panel with 8 circuits
Entire house has double glazing (stained-glass largely double-glazed)
Insulated cavity walls
Energy label C
Exterior paintwork done in 2020
Front and rear gardens landscaped
Electric awning at the rear (ground floor)
Permit parking (approx. €61 per year, no waiting list)
Transfer date negotiable

For properties older than 30 years, a standard age and asbestos clause applies.
Lees meer

Kenmerken

Overdracht

Aangeboden sinds
16 oktober 2025
Status
Verkocht
Aanvaarding
In overleg

Bouw

Soort woning
Woonhuis
Soort woonhuis
Eengezins woning
Type woonhuis
Tussenwoning
Bouwjaar
1943
Soort dak
Zadeldak

Oppervlakten en inhoud

Oppervlakte wonen
109 m²
Oppervlakte gebouwgebonden buitenruimte
6 m²
Oppervlakte externe bergruimte
5 m²
Perceel
140 m²
Inhoud
384 m³

Indeling

Aantal kamers
5
Aantal slaapkamers
4
Aantal woonlagen
1 woonlaag
Voorzieningen
Buitenzonwering en zonnecollectoren

Energie

Energielabel
C
Isolatie
Dakisolatie, muurisolatie en dubbel glas
Verwarming
Cv-ketel
Warm water
Cv-ketel
Cv-ketel
Nefit (, eigendom)

Buitenruimte

Tuin
Voortuin en achtertuin
Achtertuin
73 m² gelegen op het zuiden

Bergruimte

Schuur/berging
Vrijstaand steen
Voorzieningen
Voorzien van elektra

Plattegronden

Locatie

Ook jouw woning succesvol verkopen?

Neem dan contact op

Gratis waardebepaling