Hoge Rijndijk 88A

2313KL Leiden
Verkocht

Omschrijving

Bent u op zoek naar een luxe, royaal en levensloopbestendig 4-kamerappartement met maar liefst 169 m² woonoppervlak? Stop dan met zoeken en plan een bezichtiging in!

Aan de rand van het centrum van Leiden ligt dit zeer ruime appartement op de eerste etage van een kleinschalig appartementencomplex. Het appartement beschikt over drie zeer ruime slaapkamers, een speelse woonkamer met open keuken, twee badkamers en twee balkons waardoor u de gehele dag van de zon kunt genieten. Daarnaast beschikt het complex over een gezamenlijke binnentuin waar u gebruik van kunt maken.

Het appartement is in 2020 volledig gerenoveerd, waarbij onder andere brandveiligheid, geluidsisolatie en elektra naar de nieuwste normen zijn gebracht. Wanden, plafonds en vloeren zijn strak afgewerkt en voorzien van een moderne houten laminaatvloer. Dankzij energielabel A woont u hier comfortabel en energiezuinig.
Op loopafstand vindt u de historische binnenstad, diverse basisscholen, middelbare scholen en de Universiteit Leiden. Ook zijn er volop eetgelegenheden, een ziekenhuis, Polderpark Cronesteyn en sportverenigingen in de directe omgeving. Er is voldoende openbaar vervoer in de straat en uitvalswegen naar de A4 en N11 zijn binnen enkele minuten bereikbaar. Rustig wonen net buiten het centrum, met alle stedelijke voorzieningen binnen handbereik!

Indeling

Begane grond:
Centrale afgesloten entree met bellentableau, brievenbussen, elektrische deuropener en videofoon. De entree geeft toegang tot de voordeur van het appartement en de afzonderlijke berging.

Entree van het appartement met meterkast, garderobe en trapopgang naar de eerste verdieping. De hal is breed opgezet, waardoor het plaatsen van een traplift hier uitstekend mogelijk is. Dit maakt het appartement zeer geschikt als levensloopbestendige woning.

Eerste etage:
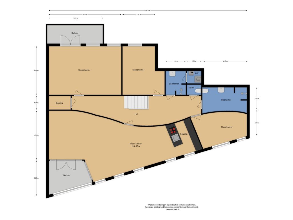
Zeer ruime overloop met een handige opbergkast en toegang tot alle vertrekken. De royale woonkamer beschikt over veel raampartijen en is licht afgewerkt, wat zorgt voor extra lichtinval. Aansluitend bevindt zich de moderne open keuken met kookeiland en gezellige bar. De keuken is voorzien van diverse inbouwapparatuur, waaronder een vaatwasser, 5-pits gaskookstel, afzuigkap, koel-/vriescombinatie, oven en combi-oven. Daarnaast is er volop opbergruimte voor servies en keukengerei.

Vanuit de woonkamer is het royale, overdekte balkon op het zuiden bereikbaar, met voldoende ruimte voor een comfortabele zithoek en een fraai uitzicht over de buitenring van Leiden.
De masterbedroom is zeer ruim en bevindt zich aan de rustige achterzijde van het appartement, wat zorgt voor optimale stilte en ontspanning. Vanuit deze slaapkamer heeft u toegang tot het tweede balkon met uitzicht op de goed onderhouden binnentuin.

Naast de masterbedroom bevindt zich de tweede slaapkamer, die momenteel in gebruik is als werkkamer, maar ook uitstekend geschikt is als slaapkamer. De eerste badkamer is voorzien van een inloopdouche, wastafel, handdoekenradiator en een opbergkast voor handdoeken. Vanuit deze badkamer is er toegang tot de inpandige berging met aansluiting voor de wasmachine en de cv-ketel. Het toilet is separaat.

De tweede badkamer beschikt over een tweede toilet, een wastafelmeubel met kasten, een inloopdouche en een handdoekenradiator. Beide badkamers zijn modern en volledig betegeld.

De derde slaapkamer is gelegen aan de voorzijde van het appartement en is eveneens ruim van opzet.
Tot slot beschikt het appartement over een zeer ruime berging van circa 9 m² op de begane grond, ideaal voor fietsen, een scootmobiel, extra opslag of hobby’s

Bijzonderheden:
- Bouwjaar: 2002
- Gebruiksoppervlakte ca. 169m2
- Externe bergruimte ca. 9 m2
- Een gezonde en actieve VVE, bijdrage voor servicekosten: €182,- per maand
- Geheel voorzien van dubbelglas
- Volledig geïsoleerd appartement
- Energielabel A
- Geschikt voor meerdere doelgroepen
- Niet-bewonersclausule van toepassing
- Oplevering in overleg
Lees meer

Kenmerken

Overdracht

Aangeboden sinds
5 februari 2026
Status
Verkocht
Aanvaarding
In overleg

Bouw

Soort woning
Appartement
Soort appartement
Portiekflat
Bouwjaar
2002
Soort dak
Plat dak

Oppervlakten en inhoud

Oppervlakte wonen
169 m²
Oppervlakte gebouwgebonden buitenruimte
20 m²
Oppervlakte externe bergruimte
9 m²
Inhoud
566 m³

Indeling

Aantal kamers
5
Aantal slaapkamers
3
Aantal woonlagen
1 woonlaag
Gelegen op
1e woonlaag
Voorzieningen
Mechanische ventilatie en lift

Energie

Energielabel
A
Isolatie
Dubbel glas
Verwarming
Cv-ketel
Warm water
Cv-ketel
Cv-ketel
, eigendom

Bergruimte

Schuur/berging
Inpandig
Voorzieningen
Voorzien van elektra

Vereniging van Eigenaren

Inschrijving KvK
Ja
Jaarlijkse vergadering
Ja
Periodieke bijdrage
-
Reservefonds aanwezig
Ja
Onderhoudsplan
Ja
Opstalverzekering
Ja

Plattegronden

Downloads

Locatie

Ook jouw woning succesvol verkopen?

Neem dan contact op

Gratis waardebepaling