Middelweg 28

2312KJ Leiden
Onder bod
Te koop
€ 420.000,- k.k.

Omschrijving

Klussers en avonturiers, opgelet.

In het hart van historisch Leiden, in de charmante Middelweg, ligt deze ruime 4 kamer bovenwoning met terras. Dit voormalig studentenhuis is klaar voor een frisse start, maar eerst vraagt om een grondige opknapbeurt. Deze bovenwoning maakt onderdeel uit van een kleinschalig complex met op de begane grond een fietsenwinkel en daarboven nog 3 appartementen. Samen vormen zij de recent opgerichte Vereniging van eigenaren.

Het beschikt momenteel over een gezamenlijke opgang, een woonkamer, ruime gesloten keuken en 3 slaapkamers, maar heeft bijvoorbeeld nog geen toilet en badkamer. De woning behoeft de nodige aandacht, maar kan om die reden dus volledig naar eigen smaak (her)ingericht worden.

De ligging is echt ideaal: Het bruisende stadscentrum met zijn vele cafés, restaurants, winkels, musea, buurtsupers, meerdere scholen, kinderopvang, sportfaciliteiten en bushaltes ligt allemaal op loopafstand. Treinstation Leiden Centraal en het recent geopende Singelpark zijn slechts een korte fietsrit verwijderd. De uitvalswegen richting A4 en N11 naar Schiphol, Amsterdam, Rotterdam, Den Haag en Utrecht zijn snel en eenvoudig te bereiken. Ook voor het bos en het strand bent u niet lang onderweg, binnen 20 minuten rijden kunt u een heerlijke wandeling maken.

Begane grond:
Gezamenlijke entree, hal met meterkast en trap naar de verdieping. Voordeur met toegang tot de woning en het terras.

Eerste etage:
Royale keuken, tussenkamer, woonkamer en gang met trap naar de tweede verdieping.

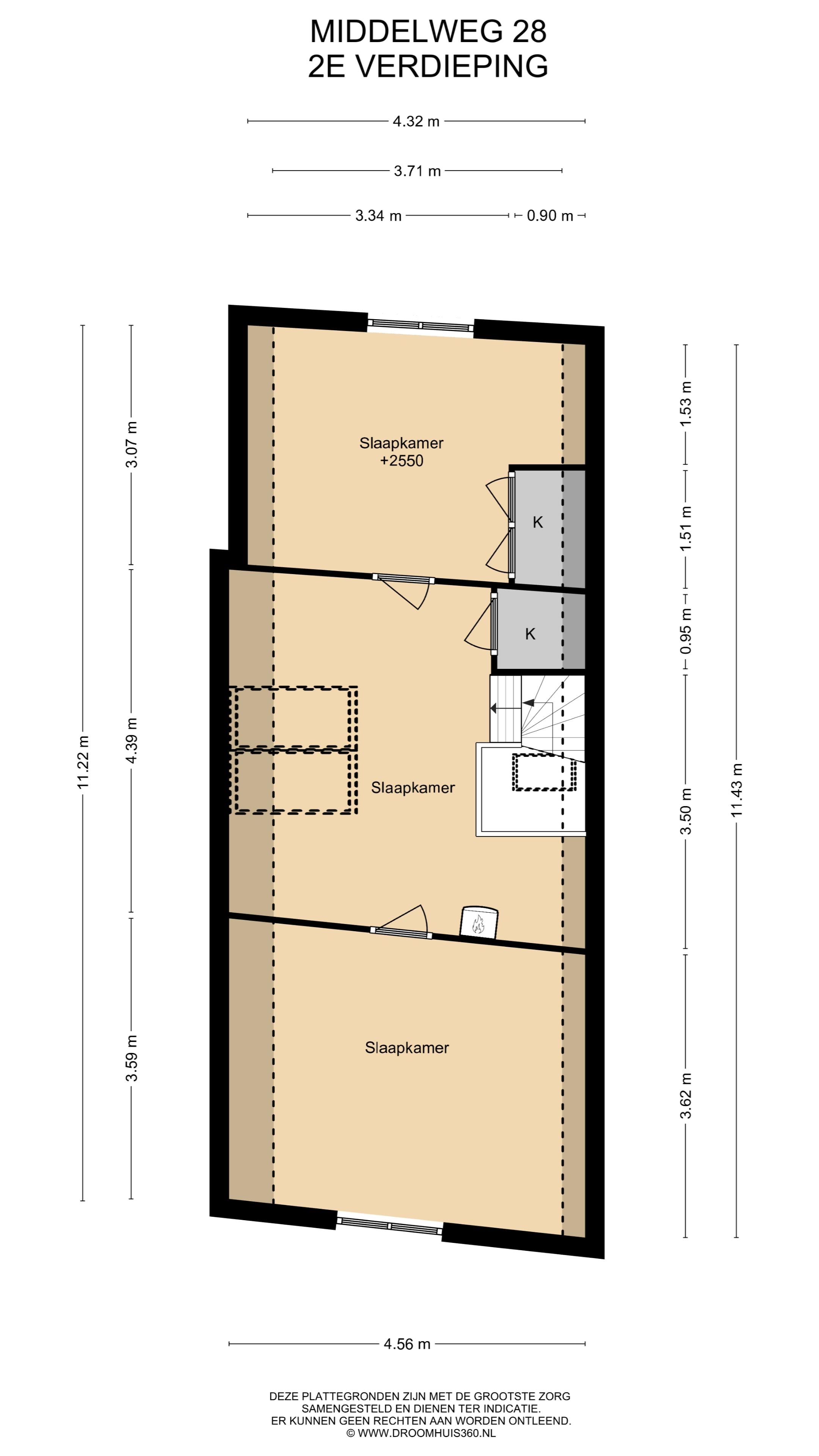
Tweede etage:
Ruime overloop met mogelijkheid tot het creëren van een badkamer en toegang tot twee grote slaapkamers.

Goed om te weten:
Kluswoning
Bouwjaar: ca. 1918
Gebruiksoppervlakte wonen: ca. 93 m2
Gebouw gebonden buitenruimte: ca. 17 m2 (dakterras)
Inhoud: ca. 307 m3
Grotendeels voorzien van dubbel glas
Energielabel: E
Beschermd stadsgezicht / karakteristiek pand
Betaald parkeren (vergunning ca. € 50,- per jaar)
Oplevering in overleg, kan snel

Bij woningen ouder dan 30 jaar hanteren wij standaard een asbest- en ouderdomsclausule.
Aangezien de eigenaar er nooit heeft gewoond is ook de niet-bewoond clausule van toepassing.
Lees meer

Kenmerken

Overdracht

Vraagprijs
€ 420.000 k.k.
Aangeboden sinds
17 maart 2026
Status
Onder bod
Aanvaarding
In overleg

Bouw

Soort woning
Appartement
Soort appartement
Bovenwoning
Bouwjaar
1918

Oppervlakten en inhoud

Oppervlakte wonen
93 m²
Oppervlakte gebouwgebonden buitenruimte
17 m²
Inhoud
306 m³

Indeling

Aantal kamers
4
Aantal slaapkamers
3
Aantal woonlagen
1 woonlaag
Gelegen op
1e woonlaag
Voorzieningen
Tv-kabel

Energie

Energielabel
E
Isolatie
Gedeeltelijk dubbel glas
Verwarming
Cv-ketel
Warm water
Cv-ketel
Cv-ketel
, eigendom

Vereniging van Eigenaren

Inschrijving KvK
Ja
Jaarlijkse vergadering
Ja
Periodieke bijdrage
-
Reservefonds aanwezig
Ja
Onderhoudsplan
Ja
Opstalverzekering
Ja

Plattegronden

Locatie

Vincent de Vos

Interesse in deze woning?

Vincent de Vos

Vraag een bezichtiging aan of neem contact met ons op