Noordeinde 11

2231LK Rijnsburg
Te koop
€ 799.000,- k.k.

Omschrijving

Te Koop! Noordeinde 11, 2231 LK – Rijnsburg

LET op! Vraagprijs is bieden vanaf prijs: € 799.000,- k.k.
Woonoppervlakte: ca. 202 m² | Gebruiksoppervlakte totaal: ca. 295 m²
Perceel: ca. 395 m² | Inhoud: ca. 975 m³ | Energielabel: G
Oplevering: in overleg – kan snel
Meer info op: noordeinde11.nl

Vrijstaand wonen met karakter, ruimte én mogelijkheden – een kans in het centrum van Rijnsburg

Zoekt u ruimte, karakter én toekomstpotentie? Dan is Noordeinde 11 precies wat u zoekt. Deze vrijstaande jaren '30 woning combineert authentieke charme met verrassend veel ruimte en een zee aan mogelijkheden.

Of u nu op zoek bent naar een ruim familiehuis, een woning met kantoor/praktijk aan huis, of een pand dat zich uitstekend leent voor mantelzorg of dubbele bewoning – hier kan het allemaal. De bestaande indeling, de gemengd-2 bestemming én de royale multifunctionele aanbouw maken dit een unieke kans.

Wat deze woning uniek maakt:

Vrijstaand woonhuis met karakter en jaren ’30 details
Grote serre, royale tuin en multifunctionele aanbouw (voormalige bollenschuur)
Geschikt voor splitsing in twee of meer wooneenheden of het realiseren van een mantelzorgwoning (mits vergund)
Woonoppervlakte ca. 202 m² | Totale gebruiksoppervlakte ca. 295 m²
Ruim perceel van 395 m² met westelijke achtertuin
Gemengd-2 bestemming: ideaal voor wonen + werken
Nabij centrum, winkels, strand en uitvalswegen

Indeling in vogelvlucht

Begane grond:
Statige entree met hal, trapopgang, meterkast, toilet en trapkast. Riante woonkamer (ca. 36 m²) met klassieke erker, open haard en plafondhoogte van 2,90 meter. Aangrenzend de woonkeuken met eethoek en doorgang naar de multifunctionele ruimte (voormalige bollenschuur van ca. 46 m²) met douchegelegenheid, keukenblok en verdieping.

Vanuit deze ruimte bereikt u ook de serre (ca. 29 m²) met openslaande deuren naar de tuin. Ideaal als tuinkamer of extra leefruimte.

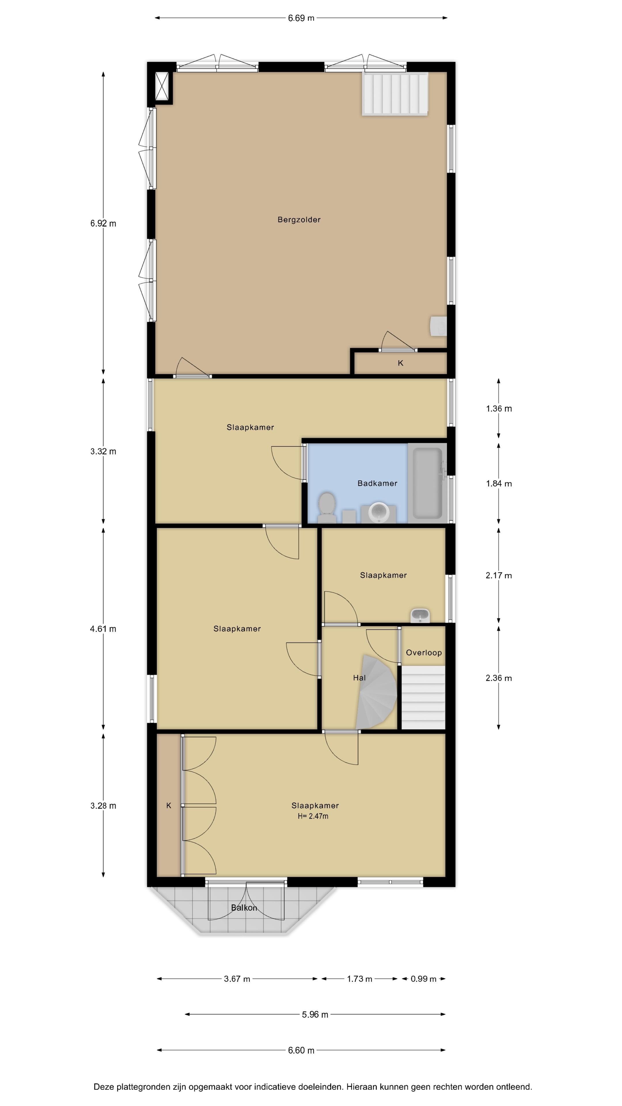
Eerste verdieping:
Overloop, 4 slaapkamers waarvan één met balkon en vaste kastwand. Eenvoudige maar functionele badkamer met ligbad/douche, wastafelmeubel en tweede toilet. Vanuit één van de slaapkamers heeft u toegang tot de verdieping boven de multifunctionele ruimte – eveneens met trap naar beneden en grote ramen.

Tweede verdieping:
Zolder met dakkapel en dakraam – in gebruik als vijfde slaapkamer.

Buitenruimte:
De diepe achtertuin op het westen biedt volop zon en privacy. Hier kunt u alle kanten op: een speelplek voor de kinderen, een fraai terras of zelfs een eigen moestuin.

Duo-wonen? Mantelzorg? Kantoor of praktijk aan huis?

Dankzij de royale afmetingen, de extra entree via de aanbouw, en de praktische indeling is Noordeinde 11 uitstekend aan te passen naar een dubbele woning (bijv. ouders/kinderen) of het creëren van een mantelzorgwoning. Ook voor zelfstandig ondernemers is dit dé plek voor een praktijk, salon of atelier aan huis.

Natuurlijk is elke verbouwing vergunning plichtig, maar de basis is hier al aanwezig.

Ligging en omgeving:

U woont hier op een centrale locatie in Rijnsburg, op loopafstand van winkelcentrum De Hoftuin, nabij scholen, sportvoorzieningen én op fietsafstand van het strand van Katwijk en Leiden centrum. Uitvalswegen richting A44, N206 en Schiphol zijn snel bereikbaar.

Bijzonderheden:

Bouwjaar 1929 – veel authentieke elementen behouden
Vrijstaand familiehuis met veel ruimte en sfeer
Woonoppervlakte ca. 202 m² / totaal ca. 295 m²
Perceel van 395 m² / inhoud ca. 975 m³
5 slaapkamers + grote multifunctionele aanbouw met verdieping
Gemengd-2 bestemming: wonen én werken toegestaan
Grote serre met openslaande deuren naar de tuin
Achtertuin op het westen, veel privacy
Verwarming via CV-installaties (Bosch en Vaillant)
Energielabel G
NEN 2580 meetcertificaat aanwezig
Niet-bewoning-, ouderdoms- en asbestclausule van toepassing

Oplevering in overleg (kan snel)

Interesse?

Dit is geen standaard woning, dit is een pand met karakter én toekomst. Ideaal voor grote gezinnen, samengestelde huishoudens of professionals met ruimtewens.

Deze woning wordt collegiaal in samenwerking met Kooitje Makelaarsdiensten te koop aangeboden.
Lees meer

Kenmerken

Overdracht

Vraagprijs
€ 799.000 k.k.
Aangeboden sinds
29 januari 2026
Status
Beschikbaar
Aanvaarding
In overleg

Bouw

Soort woning
Woonhuis
Soort woonhuis
Eengezins woning
Type woonhuis
Vrijstaande woning
Bouwjaar
1929
Soort dak
Zadeldak

Oppervlakten en inhoud

Oppervlakte wonen
202 m²
Perceel
395 m²
Inhoud
975 m³

Indeling

Aantal kamers
7
Aantal slaapkamers
6
Aantal woonlagen
1 woonlaag

Energie

Energielabel
G
Verwarming
Cv-ketel en open haard
Warm water
Cv-ketel

Buitenruimte

Tuin
Achtertuin
Achtertuin
134 m² gelegen op het westen

Garage

Soort garage
Aangebouwd steen
Voorzieningen
Elektra en water

Plattegronden

Downloads

Locatie

Gijs de Kok

Interesse in deze woning?

Gijs de Kok

Vraag een bezichtiging aan of neem contact met ons op